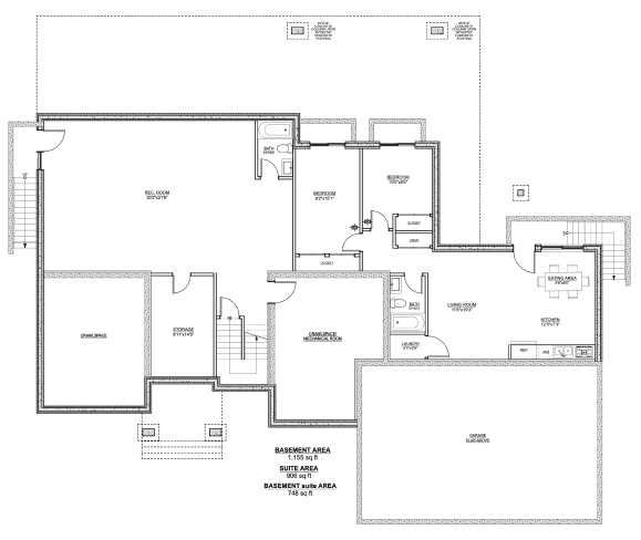
The Elevated is a three-storey custom home designed for modern family living and entertaining. Clean architecture, thoughtful layouts, and refined detailing support comfort, performance, and longevity.
5,340
square feet
3.0
bedrooms
Floorplans
Property Photos








